Проект двухэтажного дома возможно возведение из материалов: газобетон, керамический блок или по каркасной технологии, размеры строения 11,3 x 12,95 метров и имеет площадь 170 квадратных метра, спроектирован для комфортного размещения семей с детьми, родственниками или друзьями.
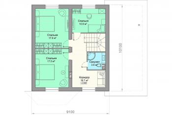
С крыльца вы попадаете попадает в тамбур и только потом - в холл. Из холла можно перейти в кладовую, санузел, спальню, кухню-столовую или гостиную. Из гостиной есть выход на крытую террасу и установлена лестница по которой можно подняться на второй этаж.
Каждый материал строительства имеет свои особенности, преимущества и недостатки, обращайтесь и мы подскажем, что лучше подходит в вашем конкретном случае: каркасная технология, газосиликатные блок, кирпич или керамические блоки.
Дом достаточно комфортабельный. Кровля утеплена, есть выведенная наружу труба. За небольшую доплату проект "Антей М9" можно доработать под ваши требования, например, изменить планировку, добавить помещений, увеличить или изменить крыльцо, достроить гараж.
Из газосиликатных блоков
Из керамических блоков, кирпича
По каркасное технологииПримерная цена строительства начинается от 3808000 рублей за силовой каркас без утепления (холодный контур) по каркасной технологии, это начальная комплектация с материалами и работой, для расчета дома под ключ 170 м2 вам необходимо связаться с нами или оставить заявку, для составления точной сметы на
февраль
2026.
Цена проекта?
Можно получить бесплатно!
При заключении договора на строительство нами - вы получаете данный проект этого или любого другого дома "Антей М9" бесплатно, стоимость будет уже включена в работу.















